helftheuvelpassage 484-486
Te huur: € 3.350,- per maand, exclusief BTW5224AR 's-Hertogenbosch
Ondernemen op een toplocatie in winkelcentrum De Helftheuvelpassage!
Ben je retailer en op zoek naar een uitstekend gelegen winkelruimte met maximale zichtbaarheid en een constante passantenstroom? Dan is deze zeer nette winkelruimte aan de Helftheuvelpassage 484-486 absoluut het bekijken waard!
De winkel is gelegen in een overdekte passage en bevindt zich op een bijzonder gunstige plek, direct naast een grote Jumbo supermarkt, recht tegenover Bruna en in de directe nabijheid van Kruidvat. Een locatie waar dagelijks veel winkelend publiek samenkomt.
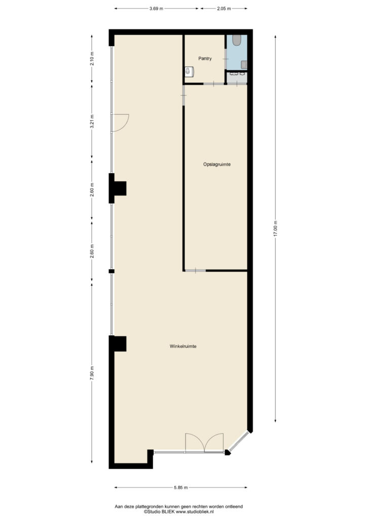
Indeling en mogelijkheden
De winkelruimte is gesitueerd op de begane grond en beschikt over een vloeroppervlakte van circa 112 m² BVO.
Aan de buitenzijde heeft de winkel een breed zijfront, wat uitstekende mogelijkheden biedt voor etalage en zichtbaarheid. De ruimte is praktisch ingedeeld en geschikt voor diverse winkelconcepten.
Bijzonderheden en huurvoorwaarden
Huurprijs: € 3.350,- per maand, exclusief BTW
Servicekosten: € 250,- per maand, exclusief BTW
Opleveringsniveau: in de huidige staat
Welvaartsklasse: A1
Het object maakt onderdeel uit van een complex (appartementsrecht)
Huurtermijn: in overleg, bij voorkeur 5 + 5 jaar
Opzegtermijn: 12 maanden
Huurbetaling: per maand vooruit
Zekerheidstelling: 3 maanden waarborgsom
Huurindexatie: jaarlijks
Huurovereenkomst: ROZ winkelruimte artikel 290 BW
Aanvaarding: in overleg
Locatie
De Helftheuvelpassage is een drukbezocht en volledig overdekt winkelcentrum in ’s-Hertogenbosch, met een sterke mix van landelijke retailers en lokale ondernemers. De ligging naast een Jumbo supermarkt zorgt voor een continue aanloop, terwijl de ruime opzet en overzichtelijke passage bijdragen aan een prettige winkelbeleving.
Rondom en direct naast het winkelcentrum is ruim voldoende parkeergelegenheid aanwezig, wat het winkelgebied zeer toegankelijk maakt voor bezoekers.
Bereikbaarheid
De winkelruimte is uitstekend bereikbaar, zowel met eigen vervoer als met het openbaar vervoer. Dankzij de ruime parkeervoorzieningen en de goede ontsluiting van het winkelcentrum is de locatie laagdrempelig en aantrekkelijk voor een breed publiek.
Kortom: een representatieve winkelruimte op een absolute A1-locatie, gelegen in een sterk winkelcentrum met veel publiek en uitstekende parkeervoorzieningen. Een uitgelezen mogelijkheid voor ondernemers die hun winkel willen vestigen op een plek waar zichtbaarheid en bereikbaarheid samenkomen.
Reageer op Helftheuvelpassage 484-486
Anderen bekeken ook
Esscheweg 274A
Vught
Vondelstraat 26
's-Hertogenbosch
Schilderstraat 17B – ‘s-Hertogenbosch
's-Hertogenbosch




