Veldweg 6J
Te huur: € 105,- per m² per jaar (excl. BTW)5321JE Hedel
Representatieve kantoorruimte op bedrijventerrein De Kampen in Hedel!
Ben je op zoek naar een nette en zelfstandige kantoorruimte met een praktische indeling en goede bereikbaarheid? Dan is dit object op bedrijventerrein De Kampen absoluut het bekijken waard!
Het pand beschikt over een kantoortuin, twee separate kantoorkamers, een eigen kantine/keuken en sanitaire voorzieningen. Dankzij de indeling is de ruimte geschikt voor diverse vormen van bedrijfsvoering en biedt het een prettige werkomgeving voor zowel kleine als middelgrote organisaties.
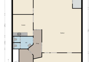
Indeling en oppervlakte
Totale oppervlakte: ca. 220 m²
Indeling: kantoortuin, twee afzonderlijke kantoren, eigen kantine/keuken en toiletten
Gelegen in een gebouw met in totaal 2 bouwlagen
Bouwjaar: circa 2000
Locatie
De kantoorruimte is gelegen op bedrijventerrein De Kampen in Hedel, op korte afstand van de op- en afritten van de snelweg A2 (Amsterdam–Maastricht). Daarmee is het object uitstekend bereikbaar vanuit zowel de Randstad als het zuiden van het land.
Bijzonderheden
Huurprijs: € 105,- per m² per jaar (excl. BTW)
Beschikbaarheid: in overleg
Parkeren: voldoende parkeergelegenheid op eigen terrein
Servicekosten: nader te bepalen; verbruik gas, water en elektra via eigen meters
Huurvoorwaarden
Huurtermijn: in overleg, minimaal 2 jaar
Opzegtermijn: 12 maanden
Huurbetaling: per maand vooruit
Zekerheidstelling: 3 maanden waarborgsom
Op aanvraag van een kandidaat-huurder kan het gehuurde worden uitgebreid/gecombineerd met extra kantoorruimte van ca. 220 m² tot in totaal ca. 440 m².
Kortom: een veelzijdige en representatieve kantoorruimte, centraal gelegen en met ruime parkeergelegenheid op eigen terrein.
Reageer op Veldweg 6J
Anderen bekeken ook
Stationsstraat 20
Vught
De Bloemendaal 10 – ‘s-Hertogenbosch
's-Hertogenbosch
Visstraat 46 – ‘s-Hertogenbosch
's-Hertogenbosch

























