Hinthamerstraat 51
Te huur: Op aanvraag5211ME 's-Hertogenbosch
Nette winkelruimte in één van DE winkelstraten van ‘s-Hertogenbosch, De Hinthamerstraat, ook wel Hinthamerpromenda genaamd, autovrij, en winkelen maar ! Vele landelijke retailers zijn in deze straat aanwezig.
Allemaal op zeer korte loopafstand van de Bossche Markt, de Sint-Jan, en verder alle centrum voorzieningen van ‘s-Hertogenbosch.
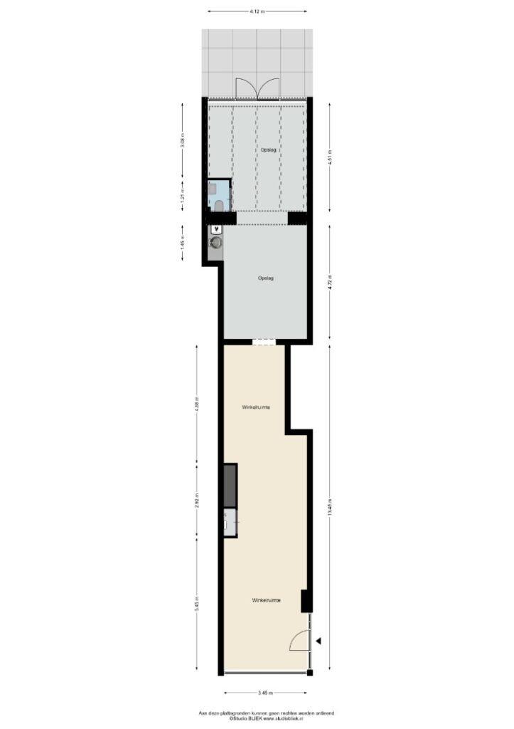
Het totale metrage bedraagt ca. 96 m2, waarvan ca. 77 m2 winkelruimte betreft en ca. 19 m2 magazijnruimte.
Locatie
Gelegen in het middenstuk van de Hinthamerstraat, de buren zijn winkels zoals, de Zeeman, Jamin, Flying Tiger, Amac store, van Arendonk schoenen.
Bereikbaarheid
In het centrum van ‘s-Hertogenbosch zijn diverse parkeergarages aanwezig voor het winkelend publiek. Zo ook goede busverbindingen en een centraal NS station op loopafstand.
Reageer op Hinthamerstraat 51
Anderen bekeken ook
Esscheweg 274A
Vught
Vondelstraat 26
's-Hertogenbosch
Schilderstraat 17B – ‘s-Hertogenbosch
's-Hertogenbosch













